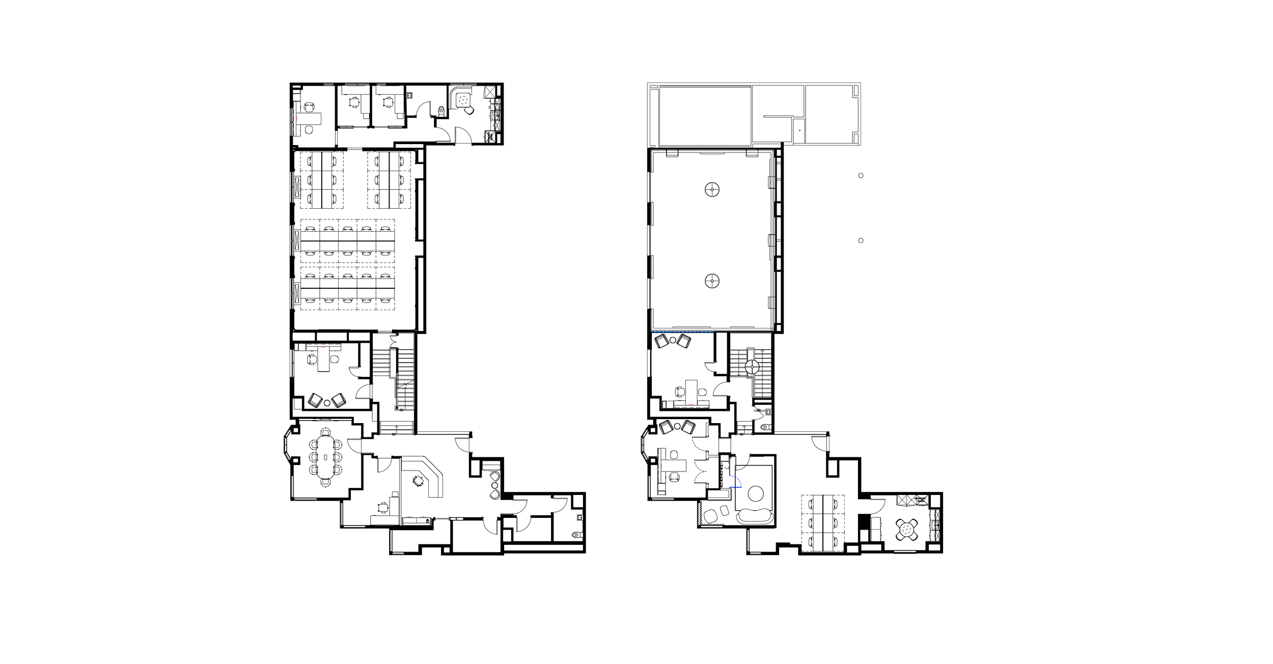
Suite 1201

Beautifully appointed heritage ‭ 5,643 SF suite featuring expansive windows and timeless architectural detailing.
Flooded with natural light, the space offers a warm, refined atmosphere ideal for modern business.


Floorplan

A turnkey model suite option is available for tenants looking for a fully built-out, customized space.

From suite planning and design to construction and delivery, our team manages the entire process.

An Envision Tour is available to help visualize a potential layout and finish concept.

www.cubecompm.ca

Seamless Turnkey Solutions

SPACE PLANS

Customized space plans to suit your needs

ENVISION IT

Seeing is believing, a virtual tour of your space

RENDERINGS

Your future space, the final concepts


Cubecom from Start to finish & Beyond

A turnkey model suite option is available for tenants looking for a fully built-out, customized space.

From suite planning and design to construction and delivery, our team manages the entire process.

An Envision Tour is available to help visualize a potential layout and finish concept.

www.cubecompm.ca

SUITE PLANNING:

Available suite plan tailored to your needs

ENVISION TOUR:

Visualize a potential build-out concept

DESIGN & BUILD:

End-to-end design and construction

TURNKEY DELIVERY:

Ready-to-occupy finished space

Let’s Work Together